20 Tebbutt Street, Leichhardt
Semi Detached
MODERN LIVING MEETS RESORT-STYLE COMFORT
Discover the perfect balance of space, style, and functionality in this beautifully appointed duplex, ideal for families, entertainers, or anyone looking to upgrade their lifestyle. Tucked away in a sought-after neighbourhood, this spacious home offers all the benefits of modern low-maintenance living. Experience a design built for effortless living with outdoor entertaining and year-round enjoyment.
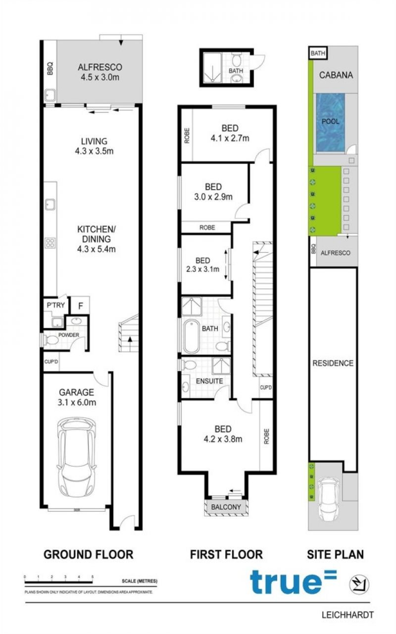
= Four generously sized bedrooms, including a luxurious master suite with wardrobe and private ensuite
= Three bathrooms, thoughtfully designed with quality fixtures and modern finishes
= Open-plan living and dining area that flows seamlessly to the outdoor entertaining space
= Contemporary kitchen with stone benchtops, stainless steel appliances, and ample storage
= Lock-up garage with internal access and additional off street parking space
= Ducted air conditioning system for year-round comfort with the
= Covered outdoor cabana, perfect for summer BBQs, evening drinks, or relaxing poolside
= Sparkling in-ground pool, fully fenced and landscaped for privacy and safety
= Low-maintenance yard with established gardens and minimal upkeep required
= Positioned in a family-friendly locale close to local schools, shops, parks, and public transport
DISCLAIMER: This advertisement contains information provided by third parties. While all care is taken to ensure otherwise, True Property does not make any representation as to the accuracy of the information contained in the advertisement, does not accept any responsibility or liability and recommends that any client make their own investigations and enquiries. All images are indicative of the property only and may include Virtual Furniture.
= Four generously sized bedrooms, including a luxurious master suite with wardrobe and private ensuite
= Three bathrooms, thoughtfully designed with quality fixtures and modern finishes
= Open-plan living and dining area that flows seamlessly to the outdoor entertaining space
= Contemporary kitchen with stone benchtops, stainless steel appliances, and ample storage
= Lock-up garage with internal access and additional off street parking space
= Ducted air conditioning system for year-round comfort with the
= Covered outdoor cabana, perfect for summer BBQs, evening drinks, or relaxing poolside
= Sparkling in-ground pool, fully fenced and landscaped for privacy and safety
= Low-maintenance yard with established gardens and minimal upkeep required
= Positioned in a family-friendly locale close to local schools, shops, parks, and public transport
DISCLAIMER: This advertisement contains information provided by third parties. While all care is taken to ensure otherwise, True Property does not make any representation as to the accuracy of the information contained in the advertisement, does not accept any responsibility or liability and recommends that any client make their own investigations and enquiries. All images are indicative of the property only and may include Virtual Furniture.
