6B Ada Lane, ERSKINEVILLE
House
Modern tri-level residence in peaceful laneway pocket
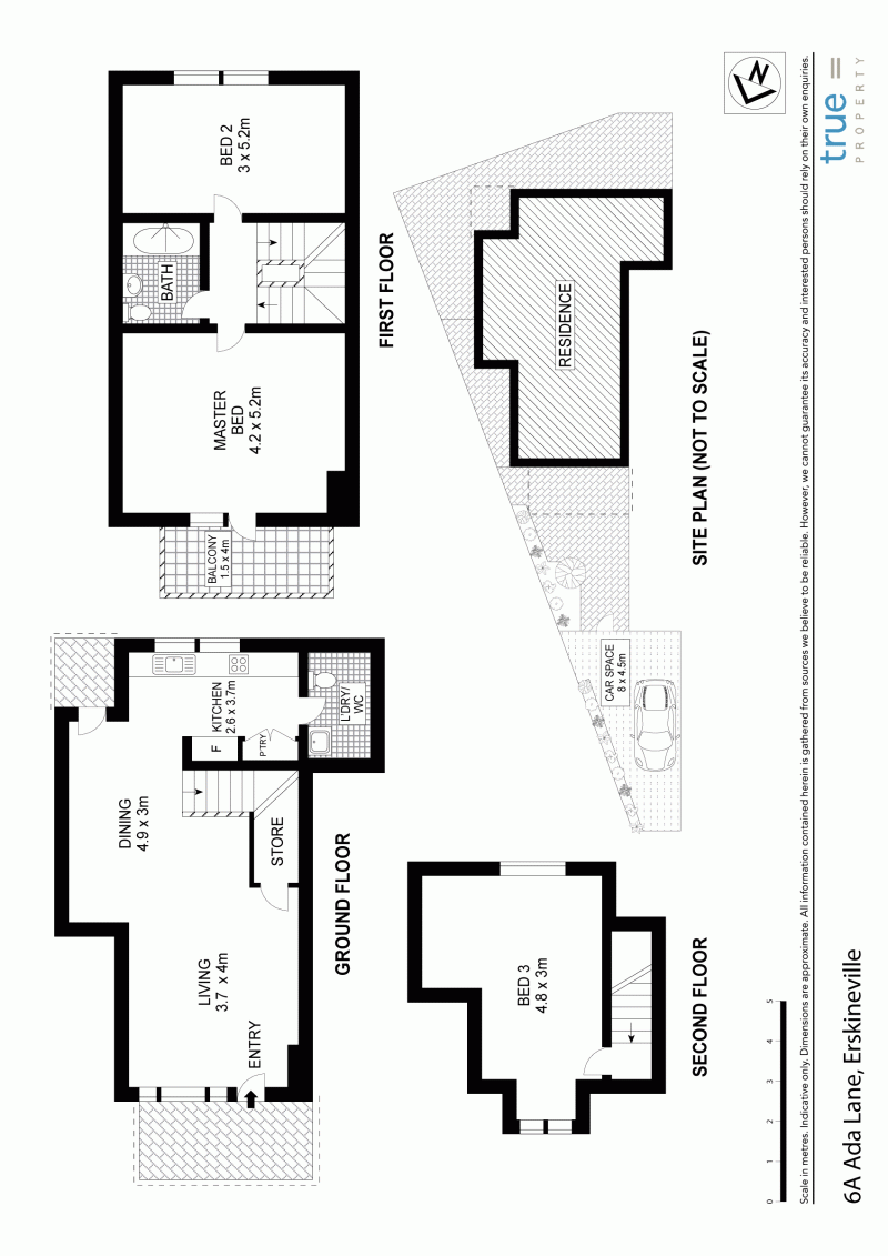
This smartly presented Torrens titled residence represents an excellent buying opportunity for those seeking a private retreat in an ultra-convenient location. Peacefully set to the very end of a hidden laneway, it features a large three-level floorplan, modern appointments and a user-friendly layout ideal for low maintenance living.
A short stroll to Erkos village cafes and shops
Open living space with lounge and dining
Small, easycare front and rear courtyards
Well equipped kitchen with new gas stove
Three large sized upper level bedrooms
Off street parking space, intercom entry
Understair storage space, gas heating
Easy walk to the train station and nearby parks
Adjoining property also available for purchase
A short stroll to Erkos village cafes and shops
Open living space with lounge and dining
Small, easycare front and rear courtyards
Well equipped kitchen with new gas stove
Three large sized upper level bedrooms
Off street parking space, intercom entry
Understair storage space, gas heating
Easy walk to the train station and nearby parks
Adjoining property also available for purchase
