8 Cecil Street, Wareemba
House
DESIRABLE BLUE RIBBON LOCALE
Discover the epitome of prestige and potential with this remarkable property boasting an extra wide frontage and a generous 700 sqm of prime real estate. Positioned in a highly demand and desired pocket of Wareemba, the property is located on the high side of street and is renowned for its exclusivity. Whether you're envisioning a luxurious family retreat or seeking an astute investment opportunity STCA, this property offers the perfect canvas to create your dream lifestyle. Don't miss out on securing this rare gem as opportunities like this don't come around very often.
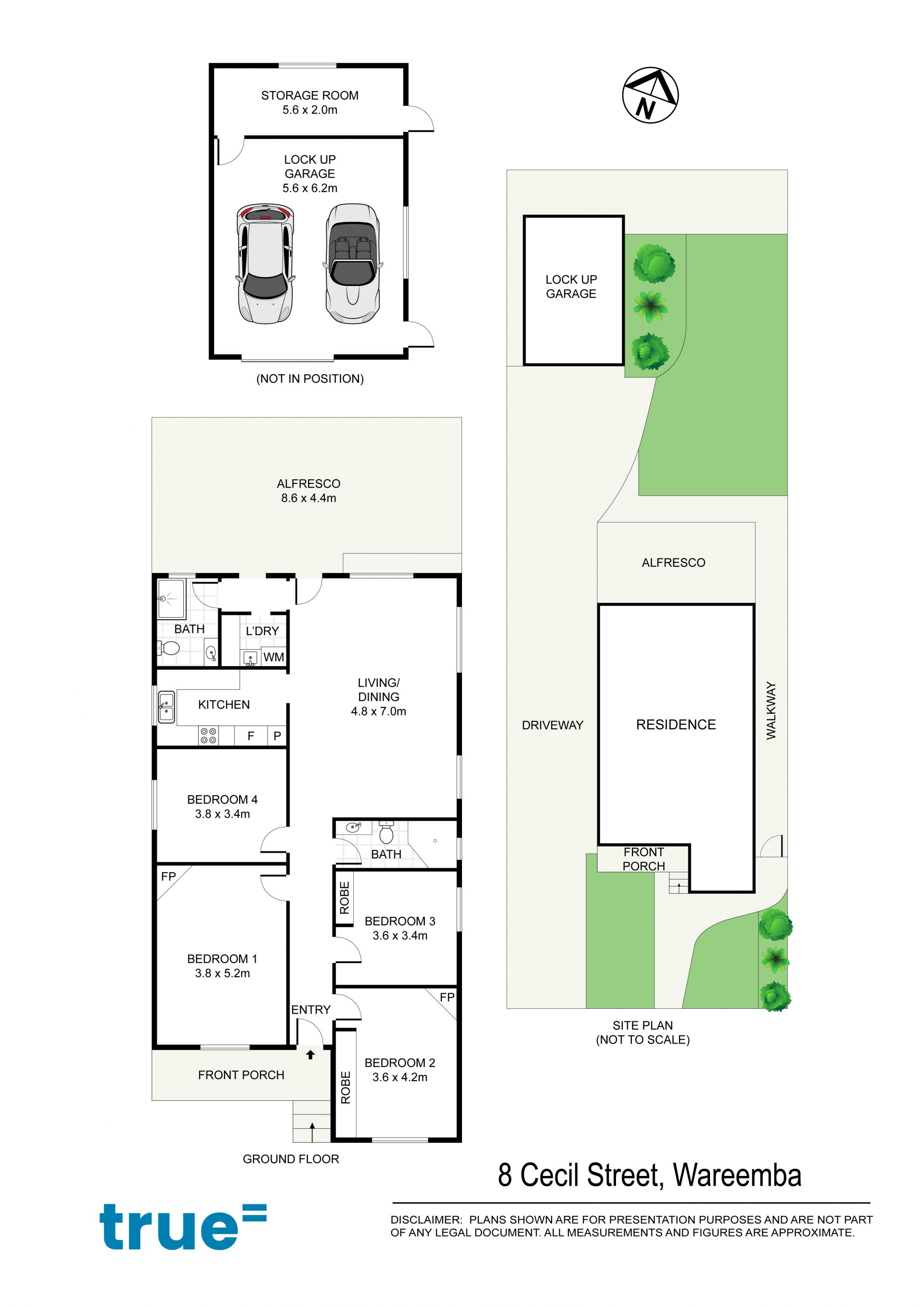
= Four spacious bedrooms, all with gorgeous high ceilings
= Stylish main bathroom including bathtub as well a second bathroom located at the rear
= Long wide driveway leading to a double lock up garage with additional storage
= Open plan lounge and dining leading to a sun-drenched yard, perfect for your family gatherings
= Gourmet modern kitchen with granite benches and stainless steel appliances
= Air-conditioning and internal laundry facilities
= Wareemba boasts one of the most outstanding lifestyle opportunities in the inner west with an abundance of family friendly activities, awe inspiring waterfront parks, award winning dining and diverse infusion of European and Australian influenced culture. Located within 10km to Sydney CBD, moments to Five Dock town centre including the newly developed Five Dock Metro and within minutes to Parramatta Road, M4 motorway and Westconnex
DISCLAIMER: This advertisement contains information provided by third parties. While all care is taken to ensure otherwise, True Property does not make any representation as to the accuracy of the information contained in the advertisement, does not accept and responsibility or liability and recommends that any client make their own investigations and enquiries. All images are indicative of the property only less
= Four spacious bedrooms, all with gorgeous high ceilings
= Stylish main bathroom including bathtub as well a second bathroom located at the rear
= Long wide driveway leading to a double lock up garage with additional storage
= Open plan lounge and dining leading to a sun-drenched yard, perfect for your family gatherings
= Gourmet modern kitchen with granite benches and stainless steel appliances
= Air-conditioning and internal laundry facilities
= Wareemba boasts one of the most outstanding lifestyle opportunities in the inner west with an abundance of family friendly activities, awe inspiring waterfront parks, award winning dining and diverse infusion of European and Australian influenced culture. Located within 10km to Sydney CBD, moments to Five Dock town centre including the newly developed Five Dock Metro and within minutes to Parramatta Road, M4 motorway and Westconnex
DISCLAIMER: This advertisement contains information provided by third parties. While all care is taken to ensure otherwise, True Property does not make any representation as to the accuracy of the information contained in the advertisement, does not accept and responsibility or liability and recommends that any client make their own investigations and enquiries. All images are indicative of the property only less
